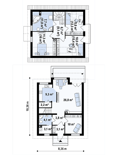
136 m²
Ürün Resimlerini
Inceleyin
Ürün
Teknik Özellikler
Teknik Özellikler
Duvar Yüksekliği
2800 mm
Dış ve İç Panel Genişlik
Kaplanmış ≤ 123 mm / 105 mm
Dış ve İç Panel Karkas Tek Katlı
80 mm
Dış ve İç Panel Karkas Çift Katlı
Dış Duvarlar 140 mm / İç Duvarlar 80 mm
Dış Panel Kaplama
8 mm Fibercement + Yalı Baskı Ahşap Desen
Dış ve İç Panel İzolasyon
Knauf Mineral Plus Ara Bölme Levhası
Dış ve İç Panel Kaplama
Alçıpan 12 mm + Alçıpan 12 mm olarak 2 Kat
Dış Kapı
Dış Kompozit İç Mdf Panel Ayarlı Kasa Çelik Kapı
Balkon Kapısı
Pvc Kapı
İç Kapılar
90 / 203 cm Ebatlarında Melamin Kapı
Pencereler
4+12+4 Çift Camlı + İçten Pvc Pervazlı Pvc Doğrama
Boya
Dış Boya Silikonlu İç Cephe Boyası Silikonlu
Elektrik Tesisatı
Sıva Altı
Sıhhi Tesisat
Sıva Altı
Çatı Kaplama
Osb 11 mm + Nem Bariyeri + Usta Kiremit
Çatı İzolasyonu
80 mm Mineral Yün (Earthwool)
Arakat İzolasyonu
80 mm Mineral Yün (Earthwool)
Tavan Kaplamaları
12 mm Kalınlığında Alçıpan Levha – Beyaz + Knauf 80 mm Earwool
Islak Hacim Kaplamaları
Duvar ve Tavan Yeşil Alçıpan
Köşe Kapama Latası
16 mm Çimentolu Lifle Levha
Yağmur Dereleri ve İnişleri
150 mm Ral9002 Boyalı Metal Kare Yağmur Dereleri, İnişler Pvc Boru
Ürün
Detayları
Proje Açıklaması
Hayal edin… Güzel bir yaz gecesi, hafif esen rüzgârın eşliğinde yanan ateşin etrafında dostlarınızla keyifli sohbetler ediyorsunuz. O anın huzurunu, doğanın sessizliğini ve yıldızların ışığını hissetmek gerçekten paha biçilemez. Prefabrik ve çelik ev çözümleri, ekonomik ve ulaşılabilir yapısıyla bu huzurlu anları gerçeğe dönüştürmeyi mümkün kılar.
Kompakt ve fonksiyonel tasarımıyla öne çıkan prefabrik ev modelleri; estetik görünümü, kullanım kolaylığı ve fiyat-performans dengesiyle dikkat çeker. Veranda alanları sayesinde doğayla iç içe bir yaşam sunarken, sevdiklerinizle biriktireceğiniz güzel anılara da ev sahipliği yapar. Geniş cephe pencereleri gün ışığından maksimum düzeyde faydalanmanızı sağlarken, PVC doğramalar ise ısı ve ses yalıtımı konusunda önemli avantajlar sunar.
Artan inşaat maliyetlerine rağmen prefabrik yapılar, hızlı kurulum süresi ve bütçe dostu seçenekleriyle hâlâ en cazip konut alternatiflerinden biridir. Açık plan tasarımlar sayesinde ferah ve kullanışlı yaşam alanları oluşturulur; modern mimari anlayışı ile hem konfor hem de şıklık bir arada sunulur.
Tüm prefabrik ev modellerinde insan sağlığını ön planda tutan modern izolasyon yöntemleri kullanılmaktadır. Dış ortam sıcaklığını ve gürültüyü minimuma indiren bu sistemler sayesinde evinizin iç iklimi her mevsim konforlu kalır. Isı ve ses yalıtımı yalnızca enerji tasarrufu sağlamakla kalmaz, aynı zamanda yaşam kalitenizi de belirgin şekilde artırır.